









Open competition
Copenhagen Denmark
Collaboration David Selander
Visualization Dreamdescriptions
Area 25 m²












Exhibition Design with Valena Ammon
Dessau Germany
Team - Benton Ching & Dominik Hoehn
Lily Chishan Wong & Sofia Boarino
Sofía Nercasseau & Valena Ammon
Graphic Design Marcus Procida
Image Credits 1 - 3 - 4 Stiftung Bauhaus Dessau /
Foto - Meyer, Thomas, 2025 / OSTKREUZ.
Area 180 m2








Kindergarten Geissberg
Open competition
Schaffhausen Switzerland
Collaboration Sotnas Studio
Structural Engineer Lorenz Kocher
HVAC Amstein Walthert
Landscape Architects Pomo
Visualization Dreamdescriptions
Area 17,400 m²










School Neuschatel
Lausanne, Switzerland
Phase: Open competition procedure
Collaboration with MBSF
Structural Engineer: BETAR
Visualization: Studio M
Area: 3,700 m²










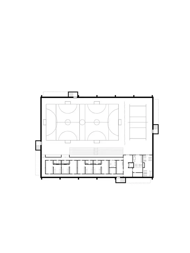
Sporthall Benfica
Open competition
Lisbon, Portugal
Collaboration with Sotnas Studio
Structural Engineer: BETAR
HVAC and Electrical: Grupo LM
Visualization: AIVA images
Area: 3,450 m²










Kiosk
Open competition
Zurich, Switzerland
Collaboration with Studio Sotnas
Visualization: AIVA images
Area: 190 m²
Postadresse: Burgweg 15,
CH-4058 Basel
Eigentümerin und Betreiberin dieser Webseite ist Jorge B. Marinho
Design & Code: Jacob Wyss
Typeface: FK Grotesk Semi Mono
Mit dieser Datenschutzerklärung informieren wir über die Bearbeitung von Personendaten im Zusammenhang mit unseren Aktivitäten und Tätigkeiten einschliesslich unserer Website unter dem Domainnamen studiomarinho.com. Wir informieren insbesondere, wofür, wie und wo wir welche Personendaten bearbeiten. Wir informieren ausserdem über die Rechte von Personen, deren Daten wir bearbeiten. Für einzelne oder zusätzliche Aktivitäten und Tätigkeiten können wir weitere Datenschutzerklärungen oder sonstige Informationen zum Datenschutz veröffentlichen.
Verantwortlich im datenschutzrechtlichen Sinn ist: Jorge B. Marinho
Studio marinho
Burgweg 15,
CH-4058 Basel
info@studiomarinho.com
Im Einzelfall können Dritte für die Bearbeitung von Personendaten verantwortlich sein oder es kann eine gemeinsame Verantwortlichkeit mit Dritten bestehen. Wir geben betroffenen Personen auf Nachfrage gerne Auskunft über die jeweilige Verantwortlichkeit.
2.1 Begriffe
Betroffene Person: Natürliche Person, über die wir Personendaten bearbeiten.Personendaten: Alle Angaben, die sich auf eine bestimmte oder bestimmbare natürliche Person beziehen.Besonders schützenswerte Personendaten: Daten über gewerkschaftliche, politische, religiöse oder weltanschauliche Ansichten und Tätigkeiten, Daten über die Gesundheit, die Intimsphäre oder die Zugehörigkeit zu einer Ethnie oder Rasse, genetische Daten, biometrische Daten, die eine natürliche Person eindeutig identifizieren, Daten über straf- und verwaltungsrechtliche Sanktionen oder Verfolgungen, und Daten über Massnahmen der sozialen Hilfe.Bearbeiten: Jeder Umgang mit Personendaten, unabhängig von den angewandten Mitteln und Verfahren, beispielsweise das Abfragen, Abgleichen, Anpassen, Archivieren, Aufbewahren, Auslesen, Bekanntgeben, Beschaffen, Erfassen, Erheben, Löschen, Offenlegen, Ordnen, Organisieren, Speichern, Verändern, Verbreiten, Verknüpfen, Vernichten und Verwenden von Personendaten.
2.2 Rechtsgrundlagen
Wir bearbeiten Personendaten im Einklang mit dem schweizerischen Recht wie insbesondere dem Bundesgesetz über den Datenschutz (Datenschutzgesetz, DSG) und der Verordnung über den Datenschutz (Datenschutzverordnung, DSV).
Wir bearbeiten jene Personendaten, die erforderlich sind, um unsere Aktivitäten und Tätigkeiten dauerhaft, menschenfreundlich, sicher und zuverlässig ausüben zu können. Die bearbeiteten Personendaten können insbesondere in die Kategorien von Browser- und Gerätedaten, Inhaltsdaten, Kommunikationsdaten, Metadaten, Nutzungsdaten, Stammdaten einschliesslich Bestandes- und Kontaktdaten, Standortdaten, Transaktionsdaten, Vertragsdaten und Zahlungsdaten fallen. Die Personendaten können ferner besonders schützenswerte Personendaten darstellen.Wir bearbeiten auch Personendaten, die wir von Dritten erhalten, aus öffentlich zugänglichen Quellen beschaffen oder bei der Ausübung unserer Aktivitäten und Tätigkeiten erheben, soweit eine solche Bearbeitung zulässig ist.Wir bearbeiten Personendaten, soweit erforderlich, mit Einwilligung der betroffenen Personen. Wir können Personendaten in vielen Fällen ohne Einwilligung bearbeiten, beispielsweise um rechtliche Verpflichtungen zu erfüllen oder überwiegende Interessen zu wahren. Wir können betroffene Personen auch um ihre Einwilligung ersuchen, wenn ihre Einwilligung nicht erforderlich ist.Wir bearbeiten Personendaten für die Dauer, die für den jeweiligen Zweck erforderlich ist. Wir anonymisieren bzw. löschen Personendaten insbesondere in Abhängigkeit von gesetzlichen Aufbewahrungs- und Verjährungsfristen.
Wir können Personendaten automatisiert bearbeiten oder Künstliche Intelligenz für die Bearbeitung von Personendaten einsetzen.Wir können Profiling einsetzen, um automatisiert bestimmte persönliche Aspekte, die sich auf betroffene Personen beziehen, zu bewerten. Profiling dient beispielsweise der Analyse oder Vorhersage von Interessen, Verhaltensweisen oder persönlichen Vorlieben.Wir informieren im Einzelfall über Entscheidungen, die ausschliesslich auf einer automatisierten Bearbeitung von Personendaten beruhen und für die betroffenen Personen mit einer Rechtsfolge verbunden sind oder sie erheblich beeinträchtigen (automatisierte Einzelentscheidungen).
Wir können Personendaten an Dritte bekanntgeben, durch Dritte bearbeiten lassen oder gemeinsam mit Dritten bearbeiten. Bei solchen Dritten handelt es sich insbesondere um spezialisierte Anbieter, deren Leistungen wir in Anspruch nehmen.Wir können Personendaten beispielsweise an Banken und andere Finanzdienstleister, Behörden, Bildungs- und Forschungseinrichtungen, Berater und Rechtsanwälte, Interessenvertretungen, IT-Dienstleister, Kooperationspartner, Kredit- und Wirtschaftsauskunfteien, Logistik- und Versandunternehmen, Marketing- und Werbeagenturen, Medien, Organisationen und Verbände, soziale Einrichtungen, Telekommunikationsunternehmen, Versicherungen und Zahlungsdienstleister bekanntgeben.
Wir bearbeiten Personendaten, um mit einzelnen Personen sowie mit Behörden, Organisationen und Unternehmen kommunizieren zu können. Dabei bearbeiten wir insbesondere Daten, die uns eine betroffene Person bei der Kontaktaufnahme übermittelt, beispielsweise per Briefpost oder E-Mail. Wir können solche Daten in einem Adressbuch oder mit vergleichbaren Hilfsmitteln speichern.Dritte, die uns Daten über andere Personen übermitteln, sind verpflichtet, den Datenschutz dieser betroffenen Personen eigenständig sicherzustellen. Sie müssen insbesondere gewährleisten, dass solche Daten richtig sind und übermittelt werden dürfen.Wir nutzen ausgewählte Dienste von geeigneten Anbietern, um die Kommunikation mit einzelnen Personen und sonstigen Kommunikationspartnern zu ermöglichen und zu verbessern. Wir können mit solchen Diensten die Daten der betroffenen Personen auch jenseits der direkten Kommunikation verwalten und anderweitig bearbeiten.
Wir bearbeiten Personendaten über Bewerberinnen und Bewerber, soweit sie für die Einschätzung der Eignung für ein Arbeitsverhältnis oder für die spätere Durchführung eines Arbeitsvertrages erforderlich sind. Die erforderlichen Personendaten ergeben sich insbesondere aus den abgefragten Angaben, beispielsweise im Rahmen einer Stellenausschreibung. Wir können Stellenausschreibungen mit Hilfe von geeigneten Dritten veröffentlichen, zum Beispiel in elektronischen und gedruckten Medien oder bei Jobportalen und Stellenplattformen.Wir bearbeiten ferner jene Personendaten, die Bewerberinnen und Bewerber freiwillig mitteilen oder veröffentlichen, insbesondere als Teil von Anschreiben, Lebenslauf und sonstigen Bewerbungsunterlagen sowie von Online-Profilen.Wir können Bewerberinnen und Bewerbern ermöglichen, ihre Angaben in unserem Talentpool zu hinterlegen, um sie bei künftigen offenen Stellen berücksichtigen zu können. Wir können solche Angaben ausserdem verwenden, um den Kontakt zu pflegen und über Neuigkeiten zu informieren. Wenn wir davon ausgehen, dass eine Bewerberin oder ein Bewerber aufgrund der Angaben für eine offene Stelle in Frage kommt, können wir die Bewerberin oder den Bewerber entsprechend informieren.
Wir treffen geeignete technische und organisatorische Massnahmen, um eine dem jeweiligen Risiko angemessene Datensicherheit zu gewährleisten. Mit unseren Massnahmen gewährleisten wir insbesondere die Vertraulichkeit, Verfügbarkeit, Nachvollziehbarkeit und Integrität der bearbeiteten Personendaten, ohne aber absolute Datensicherheit gewährleisten zu können.Der Zugriff auf unsere Website und unsere sonstige digitale Präsenz erfolgt mittels Transportverschlüsselung (SSL / TLS, insbesondere mit dem Hypertext Transfer Protocol Secure, abgekürzt HTTPS). Die meisten Browser warnen vor dem Besuch einer Website ohne Transportverschlüsselung.Unsere digitale Kommunikation unterliegt – wie grundsätzlich jede digitale Kommunikation – der Massenüberwachung ohne Anlass und Verdacht durch Sicherheitsbehörden in der Schweiz, im übrigen Europa, in den Vereinigten Staaten von Amerika (USA) und in anderen Ländern. Wir können keinen direkten Einfluss auf die entsprechende Bearbeitung von Personendaten durch Geheimdienste, Polizeistellen und andere Sicherheitsbehörden nehmen. Wir können auch nicht ausschliessen, dass eine betroffene Person gezielt überwacht wird.
Wir bearbeiten Personendaten grundsätzlich in der Schweiz. Wir können Personendaten aber auch in andere Staaten bekanntgeben bzw. exportieren, insbesondere um sie dort zu bearbeiten oder bearbeiten zu lassen.Wir können Personendaten in alle Staaten auf der Erde und anderswo im Universum bekanntgeben, sofern das dortige Recht gemäss Beschluss des Schweizerischen Bundesrates einen angemessenen Datenschutz gewährleistet.Wir können Personendaten in Staaten, deren Recht keinen angemessenen Datenschutz gewährleistet, bekanntgeben, sofern aus anderen Gründen ein geeigneter Datenschutz gewährleistet ist, insbesondere auf Grundlage von Standarddatenschutzklauseln oder mit anderen geeigneten Garantien. Ausnahmsweise können wir Personendaten in Staaten ohne angemessenen oder geeigneten Datenschutz exportieren, wenn dafür die besonderen datenschutzrechtlichen Voraussetzungen erfüllt sind, beispielsweise die ausdrückliche Einwilligung der betroffenen Personen oder ein unmittelbarer Zusammenhang mit dem Abschluss oder der Abwicklung eines Vertrages. Wir geben betroffenen Personen auf Nachfrage gerne Auskunft über allfällige Garantien oder liefern eine Kopie von Garantien.
10.1 Datenschutzrechtliche Ansprüche
Wir gewähren betroffenen Personen sämtliche Ansprüche gemäss dem anwendbaren Recht. Betroffene Personen verfügen insbesondere über folgende Rechte:
Wir können die Ausübung der Rechte von betroffenen Personen im rechtlich zulässigen Rahmen aufschieben, einschränken oder verweigern. Wir können betroffene Personen auf allenfalls zu erfüllende Voraussetzungen für die Ausübung ihrer datenschutzrechtlichen Ansprüche hinweisen. Wir können beispielsweise die Auskunft mit Verweis auf Geheimhaltungspflichten, überwiegende Interessen oder den Schutz anderer Personen ganz oder teilweise verweigern. Wir können beispielsweise auch die Löschung von Personendaten, insbesondere mit Verweis auf gesetzliche Aufbewahrungspflichten, ganz oder teilweise verweigern.Wir können für die Ausübung der Rechte ausnahmsweise Kosten vorsehen. Wir informieren betroffene Personen vorgängig über allfällige Kosten.Wir sind verpflichtet, betroffene Personen, die Auskunft verlangen oder andere Rechte geltend machen, mit angemessenen Massnahmen zu identifizieren. Betroffene Personen sind zur Mitwirkung verpflichtet.
10.2 Rechtsschutz
Betroffene Personen haben das Recht, ihre datenschutzrechtlichen Ansprüche auf dem Rechtsweg durchzusetzen oder Anzeige bzw. Beschwerde bei einer Datenschutz-Aufsichtsbehörde zu erheben.Datenschutz-Aufsichtsbehörde für private Verantwortliche und Bundesorgane in der Schweiz ist der Eidgenössische Datenschutz- und Öffentlichkeitsbeauftragte (EDÖB).
11.1 Cookies
Wir können Cookies verwenden. Bei Cookies – eigenen Cookies (First-Party-Cookies) als auch Cookies von Dritten, deren Dienste wir nutzen (Third-Party-Cookies) – handelt es sich um Daten, die im Browser gespeichert werden. Solche gespeicherten Daten müssen nicht auf traditionelle Cookies in Textform beschränkt sein.Cookies können im Browser temporär als «Session Cookies» oder für einen bestimmten Zeitraum als sogenannte permanente Cookies gespeichert werden. «Session Cookies» werden automatisch gelöscht, wenn der Browser geschlossen wird. Permanente Cookies haben eine bestimmte Speicherdauer. Cookies ermöglichen insbesondere, einen Browser beim nächsten Besuch unserer Website wiederzuerkennen und dadurch beispielsweise die Reichweite unserer Website zu messen. Permanente Cookies können aber beispielsweise auch für Online-Marketing verwendet werden.Cookies können in den Browser-Einstellungen jederzeit ganz oder teilweise deaktiviert, eingeschränkt oder gelöscht werden. Die Browser-Einstellungen ermöglichen häufig auch eine automatisierte Löschung und sonstige Verwaltung von Cookies. Ohne Cookies steht unsere Website allenfalls nicht mehr in vollem Umfang zur Verfügung. Wir ersuchen – mindestens sofern und soweit erforderlich gemäss dem anwendbaren Recht – aktiv um die ausdrückliche Einwilligung in die Verwendung von Cookies.
11.2 Protokollierung
Wir können für jeden Zugriff auf unsere Website und unsere sonstige digitiale Präsenz mindestens die nachfolgenden Angaben protokollieren, sofern diese bei solchen Zugriffen an unsere digitale Infrastruktur übermittelt werden: Datum und Zeit einschliesslich Zeitzone, IP-Adresse, Zugriffsstatus (HTTP-Statuscode), Betriebssystem einschliesslich Benutzeroberfläche und Version, Browser einschliesslich Sprache und Version, aufgerufene einzelne Unter-Seite unserer Website einschliesslich übertragener Datenmenge, zuletzt im gleichen Browser-Fenster aufgerufene Webseite (Referer bzw. Referrer). Wir protokollieren solche Angaben, die auch Personendaten darstellen können, in Logdateien. Die Angaben sind erforderlich, um unsere digitale Präsenz dauerhaft, menschenfreundlich und zuverlässig bereitstellen zu können. Die Angaben sind ferner erforderlich, um die Datensicherheit gewährleisten zu können – auch durch Dritte oder mit Hilfe von Dritten.
11.3 Zählpixel
Wir können Zählpixel in unsere digitale Präsenz einbinden. Zählpixel werden auch als Web-Beacons bezeichnet. Bei Zählpixeln – auch von Dritten, deren Dienste wir nutzen – handelt es sich üblicherweise um kleine, nicht sichtbare Bilder oder in JavaScript formulierte Skripte, die beim Zugriff auf unsere digitale Präsenz automatisch abgerufen werden. Mit Zählpixeln können mindestens die gleichen Angaben wie bei der Protokollierung in Logdateien erfasst werden.
Betroffene Personen haben das Recht, ihre datenschutzrechtlichen Ansprüche auf dem Rechtsweg durchzusetzen oder Anzeige bzw. Beschwerde bei einer Datenschutz-Aufsichtsbehörde zu erheben.Datenschutz-Aufsichtsbehörde für private Verantwortliche und Bundesorgane in der Schweiz ist der Eidgenössische Datenschutz- und Öffentlichkeitsbeauftragte (EDÖB).
Wir sind auf Social Media-Plattformen und anderen Online-Plattformen präsent, um mit interessierten Personen kommunizieren sowie über unsere Aktivitäten und Tätigkeiten informieren zu können. Im Zusammenhang mit solchen Plattformen können Personendaten auch ausserhalb der Schweiz bearbeitet werden.Es gelten jeweils auch die Allgemeinen Geschäftsbedingungen (AGB) und Nutzungsbedingungen sowie Datenschutzerklärungen und sonstigen Bestimmungen der einzelnen Betreiber solcher Plattformen. Diese Bestimmungen informieren insbesondere über die Rechte von betroffenen Personen direkt gegenüber der jeweiligen Plattform, wozu beispielsweise das Recht auf Auskunft zählt.
Wir nutzen Dienste von spezialisierten Dritten, um unsere Aktivitäten und Tätigkeiten dauerhaft, menschenfreundlich, sicher und zuverlässig ausüben zu können. Mit solchen Diensten können wir unter anderem Funktionen und Inhalte in unsere Website einbetten. Bei einer solchen Einbettung erfassen die genutzten Dienste aus technisch zwingenden Gründen mindestens zeitweilig die IP-Adressen der Nutzerinnen und Nutzer.Für erforderliche sicherheitsrelevante, statistische und technische Zwecke können Dritte, deren Dienste wir nutzen, Daten im Zusammenhang mit unseren Aktivitäten und Tätigkeiten aggregiert, anonymisiert oder pseudonymisiert bearbeiten. Es handelt sich beispielsweise um Leistungs- oder Nutzungsdaten, um den jeweiligen Dienst anbieten zu können.
13.1 Digitale Infrastruktur
Wir nutzen Dienste von spezialisierten Dritten, um benötigte digitale Infrastruktur im Zusammenhang mit unseren Aktivitäten und Tätigkeiten in Anspruch nehmen zu können. Dazu zählen beispielsweise Hosting- und Speicherdienste von ausgewählten Anbietern.Wir nutzen insbesondere:
Wir nutzen Dienste von spezialisierten Dritten, um unsere Aktivitäten und Tätigkeiten dauerhaft, menschenfreundlich, sicher und zuverlässig ausüben zu können. Mit solchen Diensten können wir unter anderem Funktionen und Inhalte in unsere Website einbetten. Bei einer solchen Einbettung erfassen die genutzten Dienste aus technisch zwingenden Gründen mindestens zeitweilig die IP-Adressen der Nutzerinnen und Nutzer.Für erforderliche sicherheitsrelevante, statistische und technische Zwecke können Dritte, deren Dienste wir nutzen, Daten im Zusammenhang mit unseren Aktivitäten und Tätigkeiten aggregiert, anonymisiert oder pseudonymisiert bearbeiten. Es handelt sich beispielsweise um Leistungs- oder Nutzungsdaten, um den jeweiligen Dienst anbieten zu können.
13.2 Terminplanung
Wir nutzen Dienste von spezialisierten Dritten, um Termine online vereinbaren zu können, beispielsweise für Besprechungen. Es gelten ergänzend zu dieser Datenschutzerklärung jeweils auch allenfalls direkt ersichtliche Bedingungen der genutzten Dienste wie beispielsweise Nutzungsbedingungen oder Datenschutzerklärungen.
13.3 Audio- und Video-Konferenzen
Wir nutzen spezialisierte Dienste für Audio- und Video-Konferenzen, um online kommunizieren zu können. Wir können damit beispielsweise virtuelle Besprechungen abhalten oder Online-Unterricht und Webinare durchführen. Für die Teilnahme an Audio- und Video-Konferenzen gelten ergänzend die Rechtstexte der einzelnen Dienste wie Datenschutzerklärungen und Nutzungsbedingungen.Wir empfehlen, je nach Lebenssituation bei der Teilnahme an Audio- oder Video-Konferenzen das Mikrofon standardmässig stumm zu schalten sowie den Hintergrund unscharf zu stellen oder einen virtuellen Hintergrund einblenden zu lassen.
13.4 Online-Zusammenarbeit
Wir nutzen Dienste von Dritten, um die Online-Zusammenarbeit zu ermöglichen. Es gelten ergänzend zu dieser Datenschutzerklärung jeweils auch allenfalls direkt ersichtliche Bedingungen der genutzten Dienste wie beispielsweise Nutzungsbedingungen oder Datenschutzerklärungen.
Wir haben diese Datenschutzerklärung mit dem Datenschutz-Generator von Datenschutzpartner erstellt.Wir können diese Datenschutzerklärung jederzeit aktualisieren. Wir informieren über Aktualisierungen in geeigneter Form, insbesondere durch die Veröffentlichung der jeweils aktuellen Datenschutzerklärung auf unserer Website.